アーベントハイム葛西臨海公園

4,190万円

東京都江戸川区南葛西5丁目3-41

京葉線「葛西臨海公園」駅徒歩18分

東西線「葛西」駅バス16分「南葛⻄⼩学校前」停歩6分

価格
4,190万円
間取り/面積
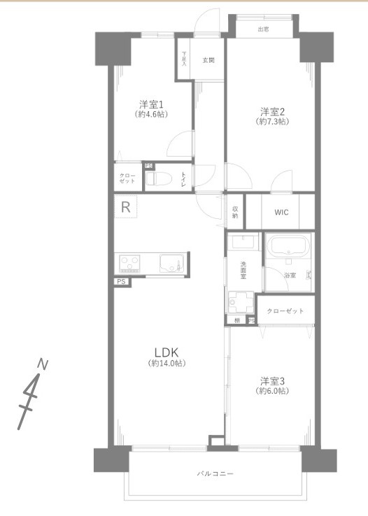
3LDK/72.00㎡
所在地
東京都江戸川区南葛西5丁目3-41
築年
1998年9月(築27年)
駐車
-
交通

京葉線葛西臨海公園」駅 徒歩18分

東西線葛西」駅 バス16分 「南葛⻄⼩学校前」 停歩6分

アーベントハイム葛西臨海公園の基本情報

物件名
アーベントハイム葛西臨海公園
価格
4,190万円
築年月
1998年9月(築27年)
総戸数
57戸
所在地
東京都江戸川区南葛西5丁目3-41
交通

京葉線葛西臨海公園」駅 徒歩18分

東西線葛西」駅 バス16分 「南葛⻄⼩学校前」 停歩6分

アーベントハイム葛西臨海公園の詳細情報

設備条件
  • 駐輪場
  • オートロック
  • 宅配ボックス
設備(その他)
    -
駐車場/月額
-/ 有 14,000〜20,000円/⽉
土地権利
所有権
国土法届出
不要
用途地域
第一種住居
戸数
57戸 / -
管理形態
管理会社に全部委託
管理員の勤務形態
日勤
管理会社
株式会社⻑⾕⼯コミュニティ
取引態様
仲介
引渡し
即時
備考
ぜひ一度見ていただきたい、「アーベントハイム葛西臨海公園」です。綺麗に整備された中古マンションで清潔感を感じます。立地する第一種住居地域は住居専用地域ではないため、住宅や商業施設、工場などが混在している市街地が多く見られる傾向にあります。江戸川区で物件探しをするなら、信頼と実績のある当社にご依頼下さい。お客様のこだわりやご要望に合わせた物件のご紹介ができるよう、全力で努めて参ります。

アーベントハイム葛西臨海公園のコメント(おすすめポイント)

アーベントハイム葛西臨海公園:葛西臨海公園駅にも近くて便利。立地している第一種住居地域は、3,000㎡までの店舗や事務所、ホテル・旅館などのほか、50㎡以下の小規模な工場などを建てることもできる地域です。マンションにどんな人が住んでいるのかも中古マンションなら事前に知れます。ディスカバリサーチで江戸川区にある物件をご紹介中です。気になる物件がございましたら、いつでもinfo@discover-research.comまでご連絡下さい。

アーベントハイム葛西臨海公園で募集中の物件

  1. 106

    21.77坪 (72.00㎡)

    4,190万円(192.47万円/坪)

近隣の物件

  1. 江戸川区西小岩2丁目

    3LDK (76.15㎡)

    6,980万円

アーベントハイム葛西臨海公園

お気軽にお問い合わせください

LINEからお問い合わせ 無料お問い合わせ

ディスカバリサーチ

03-6285-2821

10:00~19:00

(休:水曜日・日曜日)